Aller à :

  • Aller à la recherche
  • Aller au menu principal
  • Aller au contenu
0
  • NOS BIENS
  • Programmes neufs nationaux
  • LOCAUX D'ACTIVITÉS
  • VENDRE
  • Estimation
  • Avis
  • BIENS VENDUS
  • QUI SOMMES-NOUS ?
  • Actualités
0
  1. Agence immobilière Paris 14
  2. Vente
  3. Paris
  4. Paris 15eme arrondissement
  5. Duplex
  6. T6
  7. Duplex 6 p 194 m2 terrasse dernier etage prestige
Réf : OTA-DESN-052025
Duplex
Duplex 6 P - 194 m2 - Terrasse - dernier Etage -
Nombre de pièces 6
Nombre de chambres 4
Nombre de salles de bain 1
Salle d'eau 2
2 650 000 €

Duplex 6 P - 194 m2 - Terrasse - dernier Etage - Paris (75015)

Les Apparts de Victoire vous propose ce bien exceptionnel - duplex terrasse : surface carrez 194 m2 - 3 terrasses (114 m2 de surface extérieure ) . Jamais habité, ce bien Traversant , seul sur le pallier est situé aux deux derniers étages de l'immeuble et beneficie d'une Triple exposition.
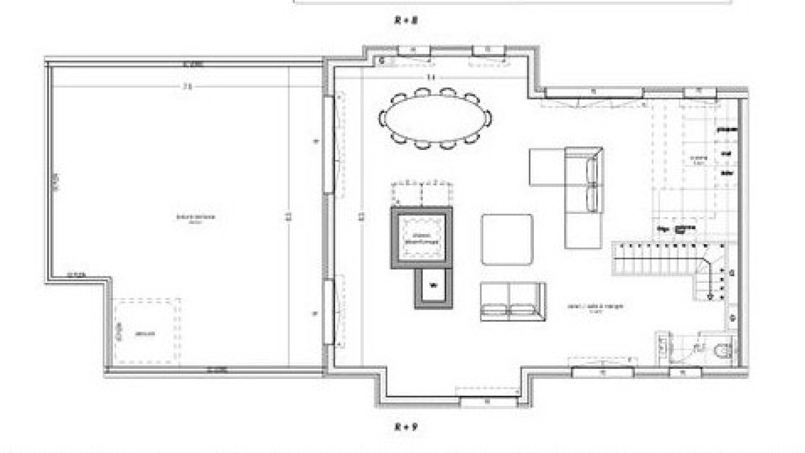
Distribution :
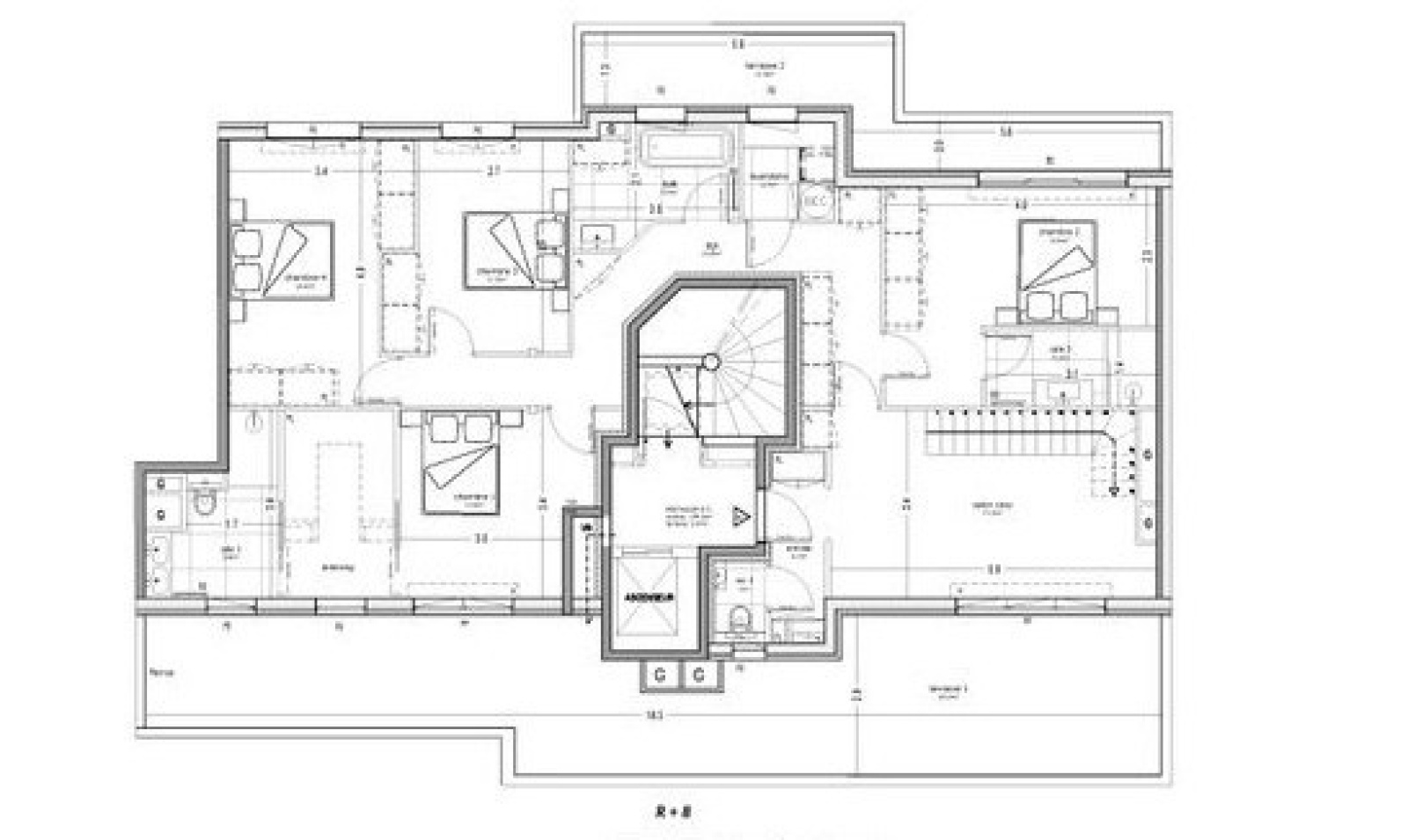
8ième étage : l'Entrée et espace nuit
    • 4 chambres donnant sur un espace extérieur dont 1 suite parentale (Chb – salle d’eau WC – dressing , 1 chambre avec salle d’eau privative , 2 chambres
    • Une salle de bain en partage avec les 2 chambres / Une buanderie /Un WC séparé
    • Un espace lecture / salon cosy avec l’escalier d’accès à l’étage séjour

9ième étage : l'espace jour

    • Séjour / salle à manger en triple exposition – 71 m2
    • Grandes baies vitrées ouvrant sur la terrasse
    • Cuisine ouverte avec fenêtre ( possibilité de fermer la cuisine )
    • Terrasse 60 m2 environ – vue tour Eiffel

Synthèse des prestations : Isolation thermique RT2012 / Double vitrage alluminium/Volets roulants électriques commandés/ protection anti salaire/Portes intérieure à âme pleine/ Parquet 14 mm/Chauffage individuel par Climatisation réversible/Faïence / carrelage Porcelanosa /Robinetterie thermostatique /Sanitaires Corian/Terrasse : sol bois sur pilotis / éclairage extérieur

Une cave deux places places de parking complètent ce bien

  • Général
  • Détails +
  • Copropriété
  • Financier
  • DPE
  • Quartier
Caractérisque Valeurs
Code postal 75015
Surface habitable (m²) 194 m²
Surface loi Carrez (m²) 194 m²
Nombre de chambre(s) 4
Nombre de pièces 6
Etage 8
Nombre de niveaux 2
Ascenseur OUI
Vue dégagée
Caractérisque Valeurs
Nb de salle de bains 1
Nb de salle d'eau 2
Cuisine Américaine
Mode de chauffage Electrique
Type de chauffage Autre
Format de chauffage Individuel
Interphone OUI
Visiophone OUI
Terrasse OUI
Cave OUI
Année de construction 2022
Caractérisque Valeurs
Copropriété OUI
nombre de lots 45
plan de sauvegarde NON
statut du syndic pas de procédure en cours
Caractérisque Valeurs
Prix de vente 2 650 000 €
Les honoraires d'agence seront intégralement à la charge du vendeur  
DPE GES
  • Commerces et santé
  • Loisirs
  • Ecoles
  • Transports
  • Pratique
Cette offre
vous intéresse

* champs obligatoires

Les informations recueillies sur ce formulaire sont enregistrées dans un fichier informatisé par La Boite Immo agissant comme Sous-traitant du traitement pour la gestion de la clientèle/prospects de l'Agence / du Réseau qui reste Responsable du Traitement de vos Données personnelles. La base légale du traitement repose sur l'intérêt légitime de l'Agence / du Réseau. Elles sont conservées jusqu'à demande de suppression et sont destinées à l'Agence / au Réseau. Conformément à la loi « informatique et libertés », vous disposez des droits d’accès, de rectification, d’effacement, d’opposition, de limitation et de portabilité de vos données. Vous pouvez retirer votre consentement à tout moment en contactant directement l’Agence / Le Réseau. Consultez le site https://cnil.fr/fr pour plus d’informations sur vos droits. Si vous estimez, après avoir contacté l'Agence / le Réseau, que vos droits « Informatique et Libertés » ne sont pas respectés, vous pouvez adresser une réclamation à la CNIL. Nous vous informons de l’existence de la liste d'opposition au démarchage téléphonique « Bloctel », sur laquelle vous pouvez vous inscrire ici : https://www.bloctel.gouv.fr Dans le cadre de la protection des Données personnelles, nous vous invitons à ne pas inscrire de Données sensibles dans le champ de saisie libre.
Ce site est protégé par reCAPTCHA, les Politiques de Confidentialité et les Conditions d'Utilisation de Google s'appliquent.

Partager le bien
Nos outils
Imprimer Imprimer
Calculatrice financière

* Champ obligatoire

Partager l'annonce

* champs obligatoires

Les informations recueillies sur ce formulaire sont enregistrées dans un fichier informatisé par La Boite Immo agissant comme Sous-traitant du traitement pour la gestion de la clientèle/prospects de l'Agence / du Réseau qui reste Responsable du Traitement de vos Données personnelles. La base légale du traitement repose sur l'intérêt légitime de l'Agence / du Réseau. Elles sont conservées jusqu'à demande de suppression et sont destinées à l'Agence / au Réseau. Conformément à la loi « informatique et libertés », vous disposez des droits d’accès, de rectification, d’effacement, d’opposition, de limitation et de portabilité de vos données. Vous pouvez retirer votre consentement à tout moment en contactant directement l’Agence / Le Réseau. Consultez le site https://cnil.fr/fr pour plus d’informations sur vos droits. Si vous estimez, après avoir contacté l'Agence / le Réseau, que vos droits « Informatique et Libertés » ne sont pas respectés, vous pouvez adresser une réclamation à la CNIL. Nous vous informons de l’existence de la liste d'opposition au démarchage téléphonique « Bloctel », sur laquelle vous pouvez vous inscrire ici : https://www.bloctel.gouv.fr Dans le cadre de la protection des Données personnelles, nous vous invitons à ne pas inscrire de Données sensibles dans le champ de saisie libre.
Ce site est protégé par reCAPTCHA, les Politiques de Confidentialité et les Conditions d'Utilisation de Google s'appliquent.

Détail des diagnostics énergétiques
DPE GES
DPE vierge

Partager avec vos proches

Facebook Facebook
Messenger Messenger
Twitter Twitter
WhatsApp WhatsApp
LinkedIn LinkedIn
Copier le lien Copier le lien
Autres biens

Ces biens peuvent aussi vous intéresser

Duplex

Duplex Neuf - 118 m2 + 60 m2 extérieurs

Paris (75015)
Voir le bien
Duplex

Duplex - 4P - 126,5 m2 - R3 /R4 - Terrasse

Paris (75015)
Coup de coeur
Voir le bien
Page d'accueil
Avis clients

© 2026 | Tous droits réservés | Traduction powered by Google |

  • Nos honoraires
  • Plan du site
  • Mentions légales
  • Admin
  • Nos liens
  • Politique RGPD
  • LinkedIn

Comme beaucoup, notre site utilise les cookies

On aimerait vous accompagner pendant votre visite. En poursuivant, vous acceptez l'utilisation des cookies par ce site, afin de vous proposer des contenus adaptés et réaliser des statistiques !

Paramétrer

Statistiques de visites

Pour améliorer votre expérience, on a besoin de savoir ce qui vous intéresse !
Les données récoltées sont anonymisées.

?

Google Analytics

requis
?

Google Tag Mananger

requis
Cookies optionnels

Ces cookies sont déposés par des prestataires afin d'identifier des produits ou services que vous consultez.

Avis client

?

Meilleurs Agents

En savoir plus

Faites estimer votre bien par un professionnel

Estimer votre bien