Aller à :

  • Aller à la recherche
  • Aller au menu principal
  • Aller au contenu
0
  • NOS BIENS
  • Programmes neufs nationaux
  • LOCAUX D'ACTIVITÉS
  • VENDRE
  • Estimation
  • Avis
  • BIENS VENDUS
  • QUI SOMMES-NOUS ?
  • Actualités
0
  1. Agence immobilière Paris 14
  2. Vente
  3. Montrouge
  4. Appartement
  5. T3
  6. 3 pieces 63 m2 dernier etage vue eiffel
Coup de coeur
Réf : 135-2024-2
Appartement
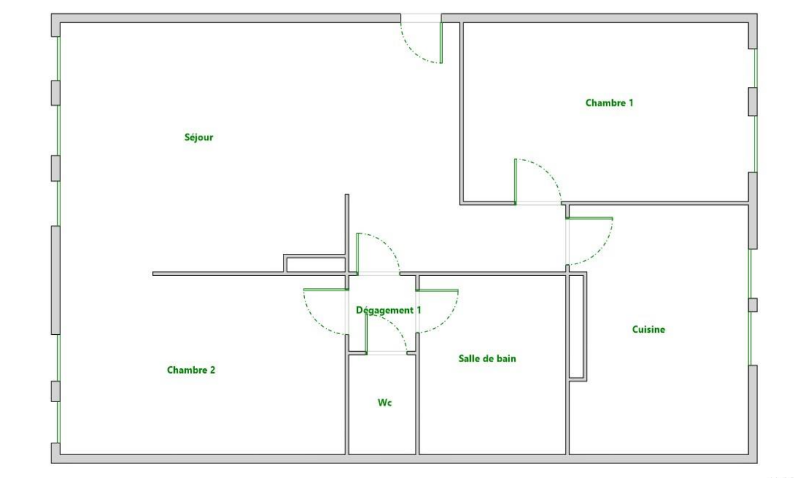
3 pièces - 63 m2 - Dernier Etage - Vue Eiffel
Nombre de pièces 3
Nombre de chambres 2
Nombre de salles de bain 1
Vidéo
Le bien en vidéo
SpotVideo
470 000 €

3 pièces - 63 m2 - Dernier Etage - Vue Eiffel Montrouge (92120)

Situé dans un immeuble de 1958 , ravalé, au dernier étage, avec ascenseur, nous vous proposons cet appartement 3 Pièces de 63 m2 au plan optimisé et à la vue imprenable.

L'appartement traversant se décompose en un salon , 2 chambres, une cuisine séparée, une salle de bain et des wc séparés.

Le chauffauge et l'eau chaude sont collectifs mais disposent de compteurs individuels. ( charges faibles 240 € par mois chauffage et eau chaude inclus )

Parquet collé au sol / grandes fenêtres double vitrage avec volet électrique /

L'appartement est très lumineux et calme .

il dispose d'une cave en sous sol

  • Général
  • Détails +
  • Copropriété
  • Financier
  • DPE
  • Quartier
Caractérisque Valeurs
Code postal 92120
Surface habitable (m²) 63 m²
Surface loi Carrez (m²) 63 m²
Nombre de chambre(s) 2
Nombre de pièces 3
Etage 7
Nombre de niveaux 1
Ascenseur OUI
Vue dégagée
Caractérisque Valeurs
Nb de salle de bains 1
Cuisine Séparée
Type de cuisine SEMI-EQUIPEE
Mode de chauffage Autre
Type de chauffage Radiateur
Format de chauffage Collectif
Interphone OUI
Balcon NON
Terrasse NON
Cave OUI
Exposition Est-Ouest
Année de construction 1953
Caractérisque Valeurs
Copropriété OUI
nombre de lots 450
Quote Part annuelle des charges 2 900 €
plan de sauvegarde NON
statut du syndic pas de procédure en cours
Caractérisque Valeurs
Prix de vente 470 000 €
Les honoraires d'agence seront intégralement à la charge du vendeur  
DPE GES
  • Commerces et santé
  • Loisirs
  • Ecoles
  • Transports
  • Pratique
Cette offre
vous intéresse

* champs obligatoires

Les informations recueillies sur ce formulaire sont enregistrées dans un fichier informatisé par La Boite Immo agissant comme Sous-traitant du traitement pour la gestion de la clientèle/prospects de l'Agence / du Réseau qui reste Responsable du Traitement de vos Données personnelles. La base légale du traitement repose sur l'intérêt légitime de l'Agence / du Réseau. Elles sont conservées jusqu'à demande de suppression et sont destinées à l'Agence / au Réseau. Conformément à la loi « informatique et libertés », vous disposez des droits d’accès, de rectification, d’effacement, d’opposition, de limitation et de portabilité de vos données. Vous pouvez retirer votre consentement à tout moment en contactant directement l’Agence / Le Réseau. Consultez le site https://cnil.fr/fr pour plus d’informations sur vos droits. Si vous estimez, après avoir contacté l'Agence / le Réseau, que vos droits « Informatique et Libertés » ne sont pas respectés, vous pouvez adresser une réclamation à la CNIL. Nous vous informons de l’existence de la liste d'opposition au démarchage téléphonique « Bloctel », sur laquelle vous pouvez vous inscrire ici : https://www.bloctel.gouv.fr Dans le cadre de la protection des Données personnelles, nous vous invitons à ne pas inscrire de Données sensibles dans le champ de saisie libre.
Ce site est protégé par reCAPTCHA, les Politiques de Confidentialité et les Conditions d'Utilisation de Google s'appliquent.

Partager le bien
Nos outils
Imprimer Imprimer
Calculatrice financière

* Champ obligatoire

Partager l'annonce

* champs obligatoires

Les informations recueillies sur ce formulaire sont enregistrées dans un fichier informatisé par La Boite Immo agissant comme Sous-traitant du traitement pour la gestion de la clientèle/prospects de l'Agence / du Réseau qui reste Responsable du Traitement de vos Données personnelles. La base légale du traitement repose sur l'intérêt légitime de l'Agence / du Réseau. Elles sont conservées jusqu'à demande de suppression et sont destinées à l'Agence / au Réseau. Conformément à la loi « informatique et libertés », vous disposez des droits d’accès, de rectification, d’effacement, d’opposition, de limitation et de portabilité de vos données. Vous pouvez retirer votre consentement à tout moment en contactant directement l’Agence / Le Réseau. Consultez le site https://cnil.fr/fr pour plus d’informations sur vos droits. Si vous estimez, après avoir contacté l'Agence / le Réseau, que vos droits « Informatique et Libertés » ne sont pas respectés, vous pouvez adresser une réclamation à la CNIL. Nous vous informons de l’existence de la liste d'opposition au démarchage téléphonique « Bloctel », sur laquelle vous pouvez vous inscrire ici : https://www.bloctel.gouv.fr Dans le cadre de la protection des Données personnelles, nous vous invitons à ne pas inscrire de Données sensibles dans le champ de saisie libre.
Ce site est protégé par reCAPTCHA, les Politiques de Confidentialité et les Conditions d'Utilisation de Google s'appliquent.

Détail des diagnostics énergétiques
DPE GES
DPE en cours

Partager avec vos proches

Facebook Facebook
Messenger Messenger
Twitter Twitter
WhatsApp WhatsApp
LinkedIn LinkedIn
Copier le lien Copier le lien
Autres biens

Ces biens peuvent aussi vous intéresser

Maison

Maison Jourdain

Paris (75020)
Coup de coeur
Voir le bien
Appartement

3 pièces - 63 m2 - Dernier Etage - Vue Eiffel

Montrouge (92120)
Voir le bien
Page d'accueil
Avis clients

© 2026 | Tous droits réservés | Traduction powered by Google |

  • Nos honoraires
  • Plan du site
  • Mentions légales
  • Admin
  • Nos liens
  • Politique RGPD
  • LinkedIn

Comme beaucoup, notre site utilise les cookies

On aimerait vous accompagner pendant votre visite. En poursuivant, vous acceptez l'utilisation des cookies par ce site, afin de vous proposer des contenus adaptés et réaliser des statistiques !

Paramétrer

Statistiques de visites

Pour améliorer votre expérience, on a besoin de savoir ce qui vous intéresse !
Les données récoltées sont anonymisées.

?

Google Analytics

requis
?

Google Tag Mananger

requis
Cookies optionnels

Ces cookies sont déposés par des prestataires afin d'identifier des produits ou services que vous consultez.

Avis client

?

Meilleurs Agents

En savoir plus

Faites estimer votre bien par un professionnel

Estimer votre bien